

Reducing Contaminants Using Peak Run Off Control Structures
What are Peak Run-off Control Structures?
Peak run-off control structures (PRCs) are small dam-like structures that can be built into small farm drains to slow the flow of water travelling through the catchment during high rainfall events and reduce the volume of sediment carried into receiving water bodies. Living Water completed a trial of four PRCs in Waituna to test their effectiveness as tools to attenuate peak discharge, reduce the suspension of sediment from bed and bank erosion, and promote the settling out of suspended sediments.
Who could use PRCs?
Farmers and landowners, regional and district councils, catchment groups, community groups, and iwi.
What was the purpose of the Living Water trial of PRCS?
During heavy rainfall events water can flow over the surface of paddocks, picking up sediment and contaminants and carrying them into farm drains and waterways. During high stream flows, the power of the water can erode stream banks, further increasing the amount of sediment in the water. Sediment can smother aquatic habitats and plants, reducing fish and invertebrate habitat and food sources.
To help reduce the amount of sediment and associated contaminants entering Waituna Lagoon, Living Water proposed installing a network of PRCs. Prior to installing a network of structures, a smaller trial needed to be undertaken to determine the best locations to place them within a waterway, which designs and materials would work best, consenting requirements, maintenance requirements, lifespan, cost, and impacts on fish passage.
The significance of physiographics
Before selecting sites within a catchment for the construction of PRCs, it is important to understand the key contaminants impacting water quality and how these contaminants move through the landscape. Physiographics group areas of similar landscape characteristics based on hydrological, redox (chemical processes) and weathering processes to explain how and why water quality varies across a catchment. This information can be used to select the best ‘tool’ to use in a catchment, sub-catchment or individual property to improve water quality.
In 2016, Living Water commissioned Land and Water Science Ltd to undertake a physiographic project in the Waituna catchment. The physiographic assessments identified approximately 400 sites where PRCs could potentially be placed. These sites were ranked in order of suitability based on annual volumes of surface runoff and potential for sediment loss.
Based on these assessments, Living Water selected four sites on a farm in the Carran Creek sub-catchment for the trial.
How do PRCs work?
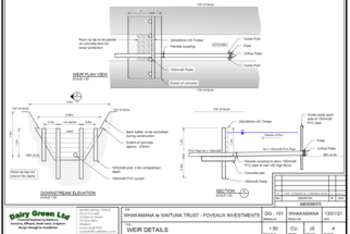
Two designs were tested: a wooden weir and an rock check dam. Under normal weather conditions, the structures allowed water to pass through them at a steady rate. During heavy rainfall, the structures held the water back for up to 48 hours. If flows exceeded the design capacity of the structure (or the culvert pipe through the structure became blocked), water was able to pass over the top of the structure to prevent flooding of surrounding paddocks. As water slowed behind the structures, sediment settled out upstream instead of being transported downstream into Waituna Lagoon. As water held behind the structures is slowly released, its erosive power is reduced, minimising the risk of downstream bank erosion. Over time, sediment that builds up behind the structure can be removed by a digger and put back on the land.

Cain Duncan


-0-1200-0-0.jpg?k=a3c64e61d0)
What did we learn from trialling the PRCs?
Did they work? The PRCs in our trial were effective at dampening peak discharges and trapping sediment. The study estimated that each structure retained 1-2 m3 of sediment over a period of 18 months.
What did they cost? The wooden weir structures were built for less than $2,300 each and were able to withstood larger flow events well. Some maintenance was required to set up the inlet pipe and prevent blockages. The rock dams were able to be constructed relatively simply and quickly, initially the rock size was too small, resulting in them needing to be rebuilt after several higher flow events. The structures were re-instated with larger rock which significantly improved their performance and longevity. The cost to install the larger sized rock PRC was $950, however this would be significantly less if rock was able to be sourced close by.
Information requirements: We gained a better understanding of what information needs to be gathered before building a PRC. Key pieces of data include: the size of the contributing catchment, intensity of high rainfall events, contribution of subsurface drains to flow, and site-specific details such as the proximity of other structures (e.g. culverts) which could impact the performance of a structure during a high flow event.
Design to suit the size of the contributing catchment: A key lesson learned is the important of designing the structure to suit the size of the contributing catchment and to withstand high flow events. The designs we trialled are best suited to sites where the contributing catchment area is 10 hectares or less. Accurately calculating the size of the contributing catchment can be challenging in flat landscapes such as Waituna, which has extensive networks of subsurface artificial drainage. Actual catchment areas for some of the sites were larger than we had estimated, for example, one of the sites had an actual catchment size of 40 hectares, which was significantly larger than the 10ha the structure was designed for.
Site selection: PRCs need to be placed in the upper reaches of farm drains, at the point where flows transition from ephemeral to intermittent, and where there is limited upstream habitat, in order to avoid creating barriers to fish passage. The structures do not meet the fish passage requirements of the National Environmental Standards (due to the nature of their design) and thus will require a resource consent to place in any natural or modified water course.
How to evaluate performance: The volume of material collected behind the PRC is a visible way of assessing how well the structure is performing, along with the reduced flow velocity of water downstream of the PRC in high flow events.
Recommendation: We recommend the development of a stage two trial with a wider network of PRCs at a sub-catchment scale to maximise contaminant retention prior to entering the lagoon.
Where is more information available about PRCS?
